近日,明升MS88·[中国]官方网站 深圳分公司成功中标龙岗街道黄龙坡九年一贯制学校新建工程(综合设计)。

项目概况
项目位于广东省深圳市龙岗区龙岗大道以北,龙城广场地铁站东北侧约400米,属于龙岗街道的教育配套设施,将建成为九年一贯制72班学校。总用地面积31160.5平方米,总建筑面积86550.56平方米,其中教学及辅助用房36536平方米,办公用房1306平方米,生活服务用房8092平方米,选配校舍40616.56平方米。建设内容包括小学及初中教学楼、未来教育中心、艺术楼、操场架空+食堂、教工宿舍楼、地下车库等建筑物及室外运动场、道路广场、绿化等室外设施。


设计理念
设计秉承 “让每一个学生成为学习的主体”的理念,用一条“文化廊”串联“七个教育院子”, 并与宗祠、公园相连,与周边环境积极互动。在多个设计维度适应未来教育的“校园模式”“社群概念”“成长空间”“复合共享”“绿色生态”“自然艺术”“文体健康”“链接社区”“快速建造”“成本控制”“持续运营”。

教育是多元化的,摒弃被动吸收知识的模式,激发兴趣,引导学生去主动学习,发挥他们的创意和特长,才是未来教育的趋势。






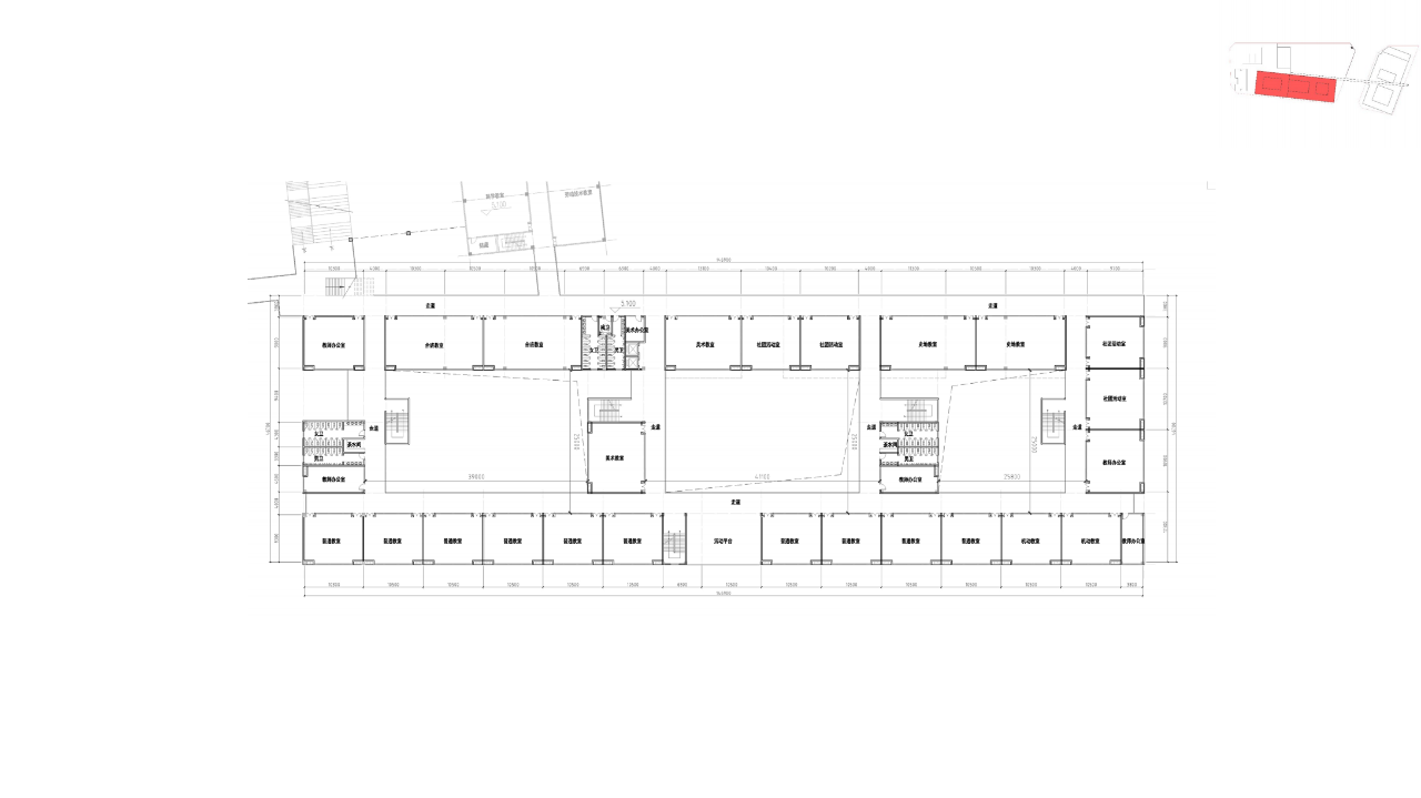
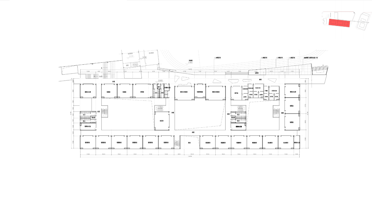
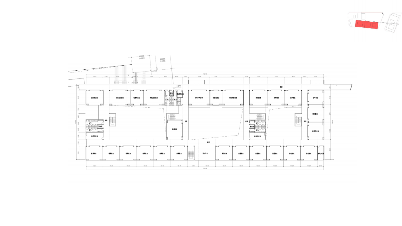
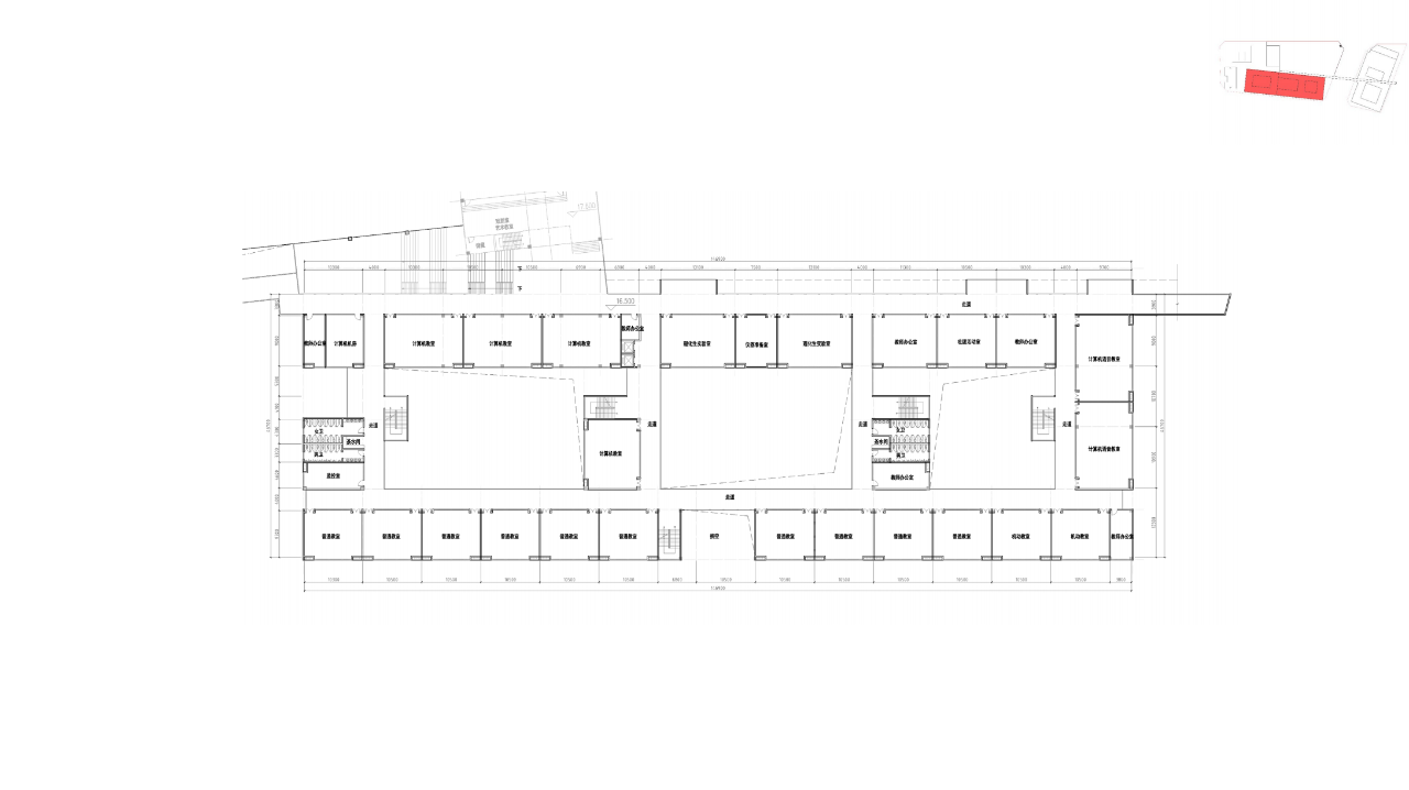
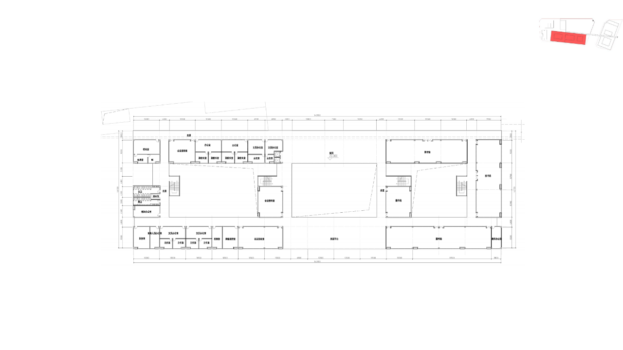
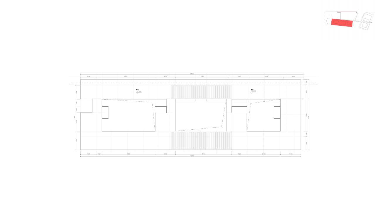
技术图纸









结语
明升MS88·[中国]官方网站 深圳分公司多年来深耕文教领域,始终秉承认真服务、尽职负责的态度,结合项目需求,严格把控品质,用专业打造了多个精品项目。未来,明升MS88·[中国]官方网站 深圳分公司将结合自身综合技术优势,紧抓“绿色低碳”的国家战略,坚持“以人为本”的教育理念,助力教育事业在新时期高质量发展。(方案设计:深圳市一境建筑设计有限公司)